top of page

Corryong College - New School Building
Client:
Corryong College
Sector:
Secondary Schools
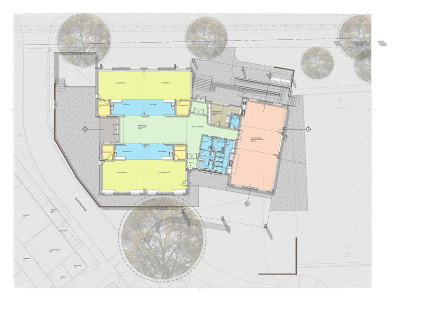
The existing primary school site has been closed down and relocated across the road to the main school campus.
The building consisting of four new general purpose classrooms, multipurpose hall, amenities, staff area, out door learning spaces, landscape and general play areas.
The building was located to the front of the school for ease of access and close proximity to the main administration building.
The design intends to reflect aspects of the local traditional architecture both in form and use of material; embracing elegance through simplicity.
12/1020 Doncaster Road
Doncaster East, Victoria 3109
Australia
Phone: (03) 9841 4300
Follow us:
bottom of page

















